香蕉振動篩結構
香蕉振動篩如果以外形來定義,可以簡稱為香蕉篩,該設備具有箱式振動器和多段不同傾角篩面的直線振動篩,篩箱的形狀與香蕉相似,故叫做香蕉篩。它主要用于細粒含量高的大、中粒級物料的粒度分級,亦可用于脫水、脫介和脫泥等作業(細粒指粒度小于篩孔尺寸一半以下的顆粒)。


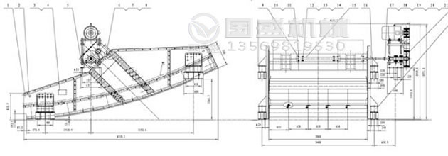
香蕉振動篩主要由篩箱、篩網、激振器、減振彈簧和下座架等組成。它是由電動機和激振器作為振動源,激振器主要是由偏心軸、皮帶輪、軸承及軸承座等組成,激振器安裝在篩箱側板上,并由電動機通過三角皮帶或軟連接與其相連,電動機帶動偏心軸旋轉,產生離心慣性力,迫使篩箱振動。






上一篇:白砂糖專用振動篩優勢體現在哪方面 下一篇:石油鉆井一級固控設備











